Баня Би-хаус
768 990 ₽ 598 900 ₽
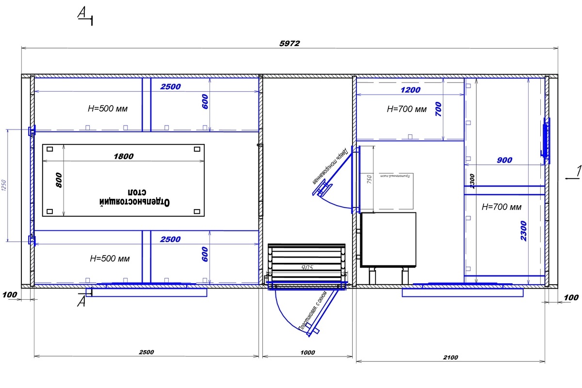
Баня Би-хаус имеет три помещения. В данной модели Вы можете организовать полноценное помывочное отделение. За счет формы баня обеспечит быстрый прогрев помещений даже зимой. Баня устанавливается бригадой сборщиков за один день.
-
Рассчитайте комплектацию и стоимость
Вы можете сделать точный расчет стоимости бани и сделать заказ самостоятельно. Нажмите на каждый пункт для выбора опций.
Выберите условия поставки
Выберите материал
Выберите расположение парного отделения
Выберите входную дверь
Выберите тип печи
-
Grill'D Bochky Short
В базовой комплектации. Grill’D Bochky Short с внутренней топкой. Загрузка - 40 кг камней. Сталь повышенной прочности
-
Печь не выбрана
Дополнительно к печи
-
Баки и опции
-
Сетка для камней L500 с камнями. В базовой комплектации бани.
-
-
Выберите окна для установки в стене бани
Выберите окна
-
Окно в парилку 300х400
-
Окно ПВХ 1250х780 мм (ламинация Графит с внешней стороны, + москитная сетка) в донышке
-
Выберите межкомнатную дверь
-
Стеклянная тонированная дверь 1640x605мм
-
-
Выберите дополнительные опции
-
-
Цвета кровли
- +
- +
- +
-
Светодиодная подсветка полков
-
Reset options
*Выберите комплектацию
-
Выберите цвет внешней обработки и количество слоев
Количество слоев внешней обработки
Цвет внешней обработки
Цвет торцов и наличников
Описание
- Еловый или кедровый профиль толщиной 42х92 мм, влажностью 10%
- Внешняя обработка антисептиком в один слой (при поставке изделия в готовом виде или со сборкой на участке)
- Крыша из гибкой черепицы Döcke PIE или Технониколь. Цвет коричневый

- Дровяная печь Grill’D Bochky Short
- Пожаробезопасное многослойное основание-сэндвич под печь из нержавеющей стали, минерита и базальтового картона
- Защита от нагрева из минерита
- Камни для печи (в подарок)

- Дымоход в сборе
- Проходной узел под дымоход из нержавеющей стали, термоизоляции, резинового уплотнителя с хомутом

- Входная дверь ПВХ с панорамным стеклопакетом 1800х700мм
- Стеклянная тонированная дверь в парилку 1640х605мм
- Полки из липы или осины согласно схемы расположения
- Трапик на пол из ели
- Светильник банный IP54
- Окно500х900 мм на фасаде
- Окно 300х400 мм
- Полки из липы или осины согласно схемы расположения
- Трапик на пол из ели
- Стол отдельностоящий
- Окно ПВХ 1250х780 мм со стеклопакетом и москитной сеткой
- Окно500х900 мм на фасаде
- Светильник банный IP54
- Розетка
- Выключатель
- Полки из липы или осины согласно схемы расположения
- Пол с уклоном
- Светильник банный IP54
- Срощенный еловый профиль 40х88 мм, влажностью 10%
- Внешняя обработка антисептиком в один слой (при поставке изделия в готовом виде или со сборкой на участке)
- Крыша из гибкой черепицы Döcke PIE или Технониколь. Цвет коричневый

- Дровяная печь Grill’D Bochky short
- Пожаробезопасное многослойное основание-сэндвич под печь из нержавеющей стали, минерита и базальтового картона
- Защита от нагрева из минерита
- Камни для печи (в подарок)

- Дымоход в сборе
- Проходной узел под дымоход из нержавеющей стали, термоизоляции, резинового уплотнителя с хомутом

- Входная дверь ПВХ с панорамным стеклопакетом 1800х700мм
- Деревянная дверь в парилку
- Полки из ели согласно схемы расположения
- Светильник банный IP54
- Окно 300х400 мм
- Полки из ели согласно схемы расположения
- Стол
- Окно 600х600 мм
- Светильник банный IP54
- Розетка
- Выключатель
- Полки из ели согласно схемы расположения
- Пол с уклоном
- Светильник банный IP54
Детали
| Количество помещений | 3 |
|---|---|
| Общая длина (наружный размер) | 5972 мм |
| Высота | 2694 мм |
| Ширина | 2384 мм |
| Вес | 2671 кг |








